АКВ-Инжиниринг                                                       (495)778-25-98 

  akv.inzh@yandex.ru

         КАНАЛИЗАЦИЯ, ВОДОСНАБЖЕНИЕ, ОТОПЛЕНИЕ         

                   

      

 

   

Шкаф пожарный ШП-К1-О2(В)ЗК (ШПК-320 ВЗК) встраиваемый закрытый для одного пожарного крана и двух огнетушителей, красный

Шкаф пожарный ШП-К1-О2(В)ЗК (старое обозначение ШПК-320 ВЗК) предназначен для размещения и обеспечения сохранности одного комплекта пожарного крана и двух огнетушителей.

Шкаф пожарный встраивается в стену, используя крепежные отверстия на задней стенке шкафа (встраиваемый). Дверцы шкафа без окна (закрытый). Рассчитан на эксплуатацию от +5с до +45с и влажности 95%.

Данные шкафы могут быть оборудованы либо евро-ручкой, либо "почтовым" замком.

• Входные отверстия с двух сторон перфорированные;
• Клапан пожарный 51мм (угловой или прямоточный), 65мм (угловой) - в комплект не входит;
• Кассета для рукава диам. 51/66 мм;
• Угол открывания дверцы - не менее 160 град.
• Угол поворота рукавной кассеты - не менее 90

Конструкция пожарного шкафа обеспечивает его естественную вентиляцию. В боковых стенках пожарного шкафа имеется отверстие для трубопровода. Антикоррозионные защитные покрытия пожарного шкафа выполнены эпоксидно-полиэфирной порошковыми красками импортного производства красного цвета.

Пожарный шкаф имеет конструктивные элементы для опломбирования и фиксации в закрытом положении дверок шкафа позволяющие за 15 секунд безопасно открыть шкаф в экстренных случаях.

Пожарный шкаф выполнен из листового металла. Дверца шкафа цельнометаллическая. На задней стенке шкафа имеются отверстия для крепления шкафа к стене. В комплекте идет декоративная рамка шкафа пожарного, которая служит "нащельником" при встраивании шкафа в нишы, она же является несущим элементом для дверок шкафа.

На дверке шкафа, где размещен ПК, должны быть нанесены условное обозначение  пожарного крана и огнетушителя, а также аббревиатуры "ПК", после которой оставлено место для порядкового номера шкафа. Внутри шкафа должен располагаться формуляр с информацией о технических средствах расположенных в пожарном шкафу.

Комплект поставки:

• Шкаф пожарный – 1шт.
• Паспорт (инструкция) – 1 шт.
• Корзина для рукава 50/65 – 1 шт.
• Знак пожарной безопасности "ПК"   – 1шт.
• Знак пожарной безопасности "Огнетушитель"  – 1шт.

Основные характеристики:

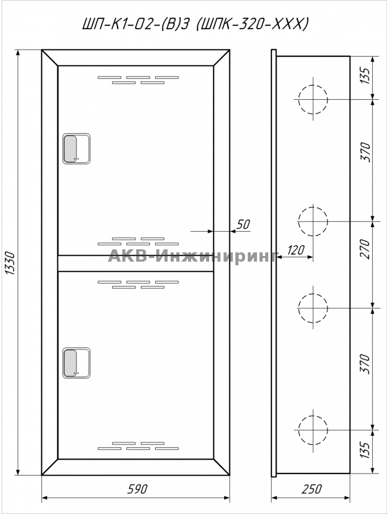
  • Габариты: 1330х590х250 мм
  • Масса: 20,8 кг
  • Тип: встраиваемый
  • Исполнение: закрытое
  • Цвет: красный (RAL 3002)
  • Для размещения: одного комплекта пожарного крана и одного огнетушителя
  • Замок: евро-ручка или "почтовый" замок

Рекомендуемое оснащение шкафа пожарного:

• Огнетушители переносные, с полной массой до 12кг и высотой до 620 мм.

• Пожарный клапан (вентиль) - изготовленные из чугуна или латуни, с условным проходом Dn 50/65, с углом в 1200 или 900.

• Пожарный рукав с условным проходом Dn 50/65 с рабочим давлением на 1,0 МПа или 1,6 МПа в зависимости от давления в противопожарном водопроводе. В соответствии с действующими нормами пожарный шкаф можно оснащать рукавом РПК следующих длин: 20, 15 и 10 метров

• Головка ГЦ или ГМ присоединяется к пожарному водопроводу или клапану.

• Ствол пожарный РС-50 или РС-70.  Ствол может быть навязан сразу на рукав

РС-50.01  или РС-70.01.